RE: ALPS HYBRID GARAGE
| Date | Jan. 2026 |
|---|---|
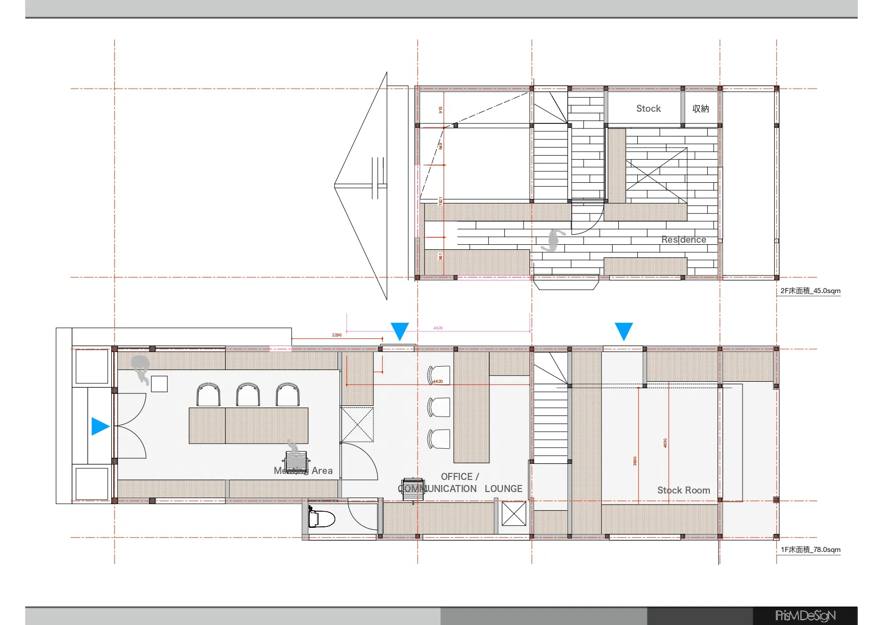
| Category | OFFICE & RESIDENCE |
| Site Area | 78.0sqm |
| Address | 広島県福山市南手城町2丁目29−41 |
CONCEPTJPN ENG
RE: ALPS HYBRID GARAGE — 整備工場の新たな日常
自動車整備工場とは、傷ついた車を補修し、メンテナンスによって長く安全に維持する場所である。本プロジェクトでは、その「車を大切に使い続ける」という精神を、工場の敷地片隅で物置となっていた一軒の木造民家に適用した。私たちは、このありふれた木造の既存ストックを解体するのではなく、新たな機能を受け入れる器として再評価した。数十年の時を刻んだ柱や梁はそのままに、整備工場を象徴する「鉄・ガラス・モルタル」といった工業材料を外科手術のように挿入し、空間をハイブリッドさせた。この操作により、かつて閉ざされた「物置(Private)」であった場所は、地域や顧客に開かれた「オフィス(Public)」へと劇的な転換を遂げた。古き良き木造の架構と、現代的な工業素材が対比・調和するこの空間は、単なるリノベーションを超え、地方都市における整備工場のあり方を再定義する「HYBRID GARAGE」である。
自動車整備工場とは、傷ついた車を補修し、メンテナンスによって長く安全に維持する場所である。本プロジェクトでは、その「車を大切に使い続ける」という精神を、工場の敷地片隅で物置となっていた一軒の木造民家に適用した。私たちは、このありふれた木造の既存ストックを解体するのではなく、新たな機能を受け入れる器として再評価した。数十年の時を刻んだ柱や梁はそのままに、整備工場を象徴する「鉄・ガラス・モルタル」といった工業材料を外科手術のように挿入し、空間をハイブリッドさせた。この操作により、かつて閉ざされた「物置(Private)」であった場所は、地域や顧客に開かれた「オフィス(Public)」へと劇的な転換を遂げた。古き良き木造の架構と、現代的な工業素材が対比・調和するこの空間は、単なるリノベーションを超え、地方都市における整備工場のあり方を再定義する「HYBRID GARAGE」である。
RE: ALPS HYBRID GARAGE
This project is a renovation of an auto repair shop office under the concept of "Regeneration and Fusion". By inserting industrial materials like iron and mortar into an existing wooden structure, we created a "Hybrid" space that blends the factory's public functions with the warmth of the private living space. Just as cars are repaired and maintained, this architecture creates new value by affirming and revitalizing the existing structure.
This project is a renovation of an auto repair shop office under the concept of "Regeneration and Fusion". By inserting industrial materials like iron and mortar into an existing wooden structure, we created a "Hybrid" space that blends the factory's public functions with the warmth of the private living space. Just as cars are repaired and maintained, this architecture creates new value by affirming and revitalizing the existing structure.
GALLERY
